
249㎡中式六合院 | 庭院飛花,聽雨煮茶
她說 她想在自家的院子里 看得見、摸得著、聞得到 這一年四季 春天的花,秋天的月 夏天的雨,冬天的雪 // 本案是位于杭州市桃園小鎮的一套中式六合院,業主夫婦二人在出版業深耕多年,喜靜,好讀書,所以對中式風也是情有獨鐘,設計師因循建筑本身的古韻,將這個家改造成為他們內心所向往的“桃源居”。 設計師為房子的公共區域與私人區域做了整套的動靜分區,主要活動與訪客路線在一樓,臥室與書房在二樓,互不打擾,兼顧主人生活的私密性和便捷性。 庭院深深深幾許,亂紅飛過秋千去。“庭院”可以說是中式風情的一個象征,移步易景的傳統雅致勾連了過往與現在,春夏秋冬皆有不同的景色展開,加上四水歸堂的天水引入,充分拉進了人與自然的距離。建筑與景觀庭院結合,展現典雅的東方美學。就在這里,他們過著每一個平淡而幸福的日子... 1 | 庭院 Courtyard




推開這扇如意門,我們便來到了這個家的內院。
迎面而來一扇透景窗。透景作為中式園林一種常用的設計手法,所追求的是“隔而不斷”的視覺效果,凸顯虛實相生的空間格調。 在寬敞的連廊里側是建筑包含的一大一小兩個庭院,彼此以月洞門相連。 園林借助盆栽綠化將自然的氣息與建筑本身的氣質完美融合,白墻黑瓦小軒窗,盡情描畫著古人的雅趣意興。大院中放置休閑桌椅,一家人坐在這兒煮煮茶、聊聊天,恰應了那句,此心安處是吾鄉。 問君何能爾,心遠地自偏。小院毗鄰臥房,內置假山、圓凳、圓桌,營造古樸幽靜的氛圍,只任身心自由暢游在天地之間。 2 | 客廳 Living Room





客廳做傳統中式布置,嫩鵝黃墻,青灰色地搭配古色古香的家具,透出低調的莊重。清風入堂,日光漫灑,寧靜的是空間,更是心境。
頂地的回字紋上下呼應,在民間有“富貴延綿不斷”的說法。中式的情韻與藝術審美融會貫通,悠悠景致,悄然而生。 室內遵循傳統文化,廳堂置東瓶西鏡,編鐘在中,寓意“終生平靜”。字畫、古玩、卷軸、盆景,空間設計與內部陳設相輔相成,古典的標致透過歲月,永久凝刻在了家的靈魂里。 在客餐之間設計了小天井,擺放一個水缸,養上幾尾金魚和荷花,寓意著四水歸堂,年年有余。 3 | 餐廳 Dining Room 餐廳選擇圓桌樣式,并設計吧臺西廚區,開放式的行為界面也為這個家庭日常互動的諸多場景提供了更多可能。

餐廳頂面借鑒了古建筑中的“懸山頂”概念,獨樹一幟的外觀充分彰顯中國傳統美學的內涵與趣味。
4 | 廚房 Kitchen
東面大中廚呈U字型,洗-切-炒的動線一氣呵成,烤箱微波爐和冰箱做內嵌,讓整個空間顯得更加整體。
5 | 臥室 Bedroom
寬敞的主臥空間,素色硬包構建柔和的睡眠環境,在和諧與靜雅之間,打磨出空間的溫潤質感。
次臥的裝飾風格更加簡凈,象牙白構建低飽和度視覺空間,整體以更偏向年輕人的審美進行打造。
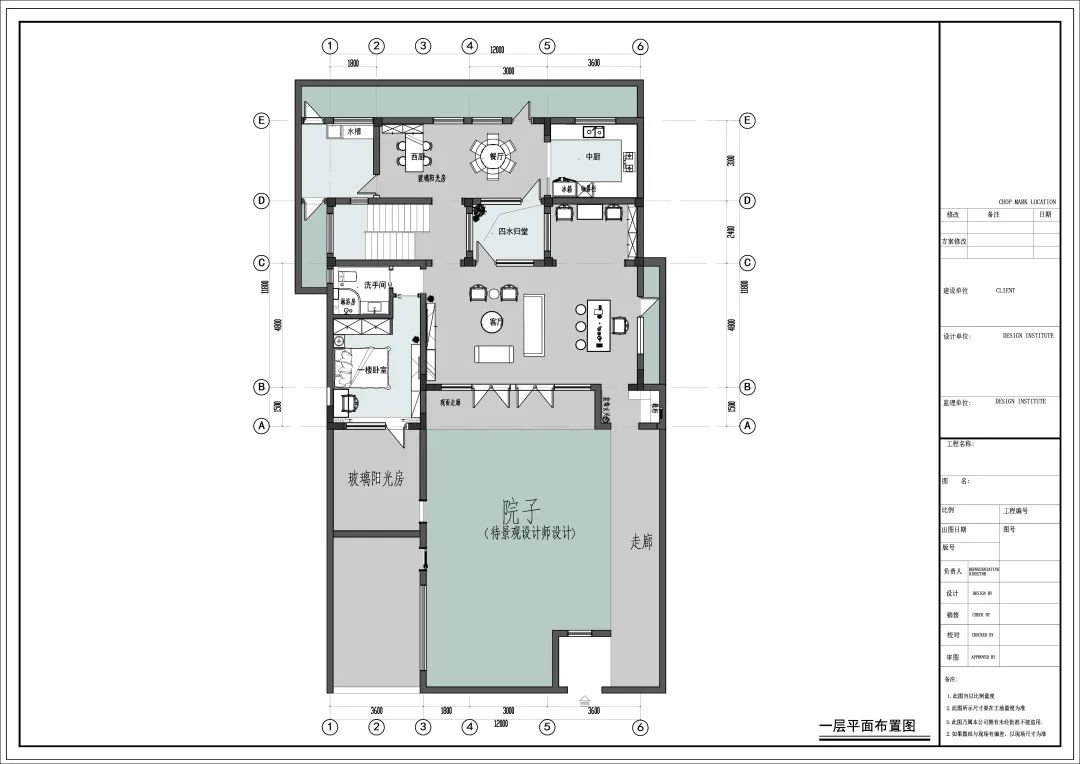
6 | 衛生間 Bathroom 潔凈明亮的衛浴空間,懸浮式臺盆柜方便日常清理,淋浴房與浴缸并置,保證日常使用的舒適度。 戶型設計 ▲一層 ▲二層 項目信息 項目名稱:桃源小鎮品霞苑 設計風格:新中式 項目類型:中式六合院 項目地點:中國·杭州 項目面積:249㎡ 項目服務:設計·施工·硬裝·軟裝 全案設計 設計單位:浙江南鴻裝飾 施工單位:浙江南鴻裝飾

免費
免費申請戶型規劃
專屬設計師免費1對1全程服務
已經有3790人申請
24小時免費咨詢電話
400-8800-618
你家預算
108080元