
中駿合景府 | 100㎡現代極簡,平和有序,淡雅從容


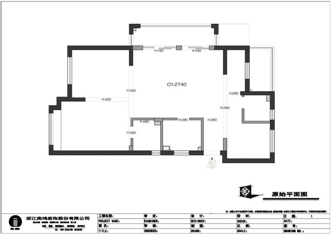
地址:中駿合景府 城市:中國 寧波 戶型:三室兩廳 面積:100㎡ 風格:現代極簡 施工:浙江南鴻裝飾 #作品前言 在本案中,設計師并沒有大改格局,只是順著原本的結構進行了相應的優化調整,使空間動線更加開放流暢。地面與墻面大量使用素色、啞光和磨砂感的材質,營造清淺又美好的居家氛圍,幫助屋主在忙碌的生活中找到心的棲息,回歸自由舒適的狀態。 #戶型改造 Living Room & Dining Room 極簡并非是某種固定的范式或統一的秩序,設計的重點在于以極簡去投射出居者生活的豐富。 客餐廳合為一體,公共區域的空間感得到最大化,沙發與餐桌兩邊均保持了流暢洄游動線。黑白灰的色調妥善調配,均衡分布,簡約的空間形態呈現出謙遜、溫和的氣質,每個細節的把控都可以說是對生活與藝術美學的微妙平衡。 除用餐之外,餐廳也兼具了一部分書房的功能,可根據主人的需求隨意切換閱讀、辦公、會友等多種情景。 Kitchen 廚房相鄰玄關通道,本身面積偏小,如果做封閉中廚難免顯得促狹,于是用玻璃隔斷做了這個半開放式改造,在保證區域連通的同時,內部的采光也得到大大改善。 U型布局最大化利用內部空間,啞光的櫥柜更具質感,墻面鋪貼水磨石瓷磚,為利落黑白調現代化空間增添小清新的氛圍。 Bedroom 主臥整體仍是黑白的基調,通過綠色的點綴,勾勒理性而又靈動的氣質。不同材質的碰撞為空間打破單調,發掘更多趣味。 兒童房加入清爽的藍,伴隨著童趣的擺件與小王子主題的裝飾畫,徘徊在空間內的恰是天真爛漫本身。 Study 書房,柜體顏色與地板相近,空間整體感極佳,雙人位提升日常使用效率。 Bathroom 衛生間做干濕分離,黑色懸浮臺盆柜加強空間的立體感,淺色墻地磚則讓空間變得干凈又治愈。















免費
免費申請戶型規劃
專屬設計師免費1對1全程服務
已經有3788人申請
24小時免費咨詢電話
400-8800-618
你家預算
108080元