
南鴻裝飾9月全體設計師會議精彩概覽

9日下午,南鴻裝飾9月全體設計師會議于杭州瑞萊克斯大酒店舉行。
本次會議上,共有七位設計師做了案例分享,還有合作品牌商的產品講解與南鴻產品的上新信息,一起來看看!
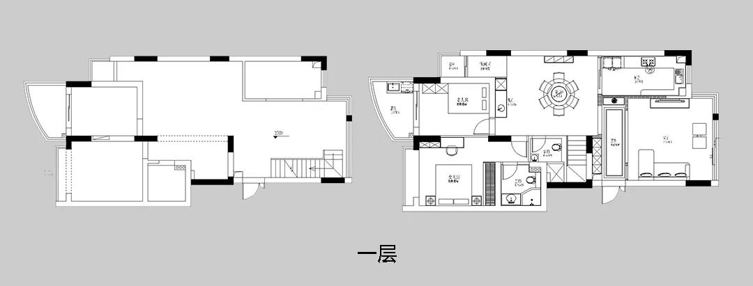
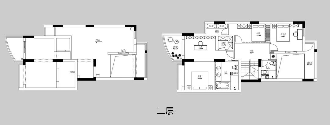
? MVP作品 設計六部湯澤陽 / 天鴻君邑 本次PK賽最佳作品,來自設計六部湯老師的天鴻君邑。從業經驗相當豐富的湯老師,本次也為大家分享了自己一套優秀的現代簡約風格作品。 ▲戶型圖 ▲西廚與餐廳配置,島臺設計超級實用! 業主可以說是位餐飲界大佬,所以廚房相關布局是本案的重中之重。超大面積的中西廚、餐廳規劃給予業主最舒適的下廚、用餐空間。結合現代簡約的利落線條,濃郁的小資格調就這樣在空間中氤氳開來。 蕭山分部劉勇 / 康城國際 家是收納幸福的情感空間,而好的設計在實現功能最大化的同時,也是連接家庭成員之間親密互動的紐帶。 本案是美式風格作品。一個其樂融融的大家庭,設計師結合他們的生活習慣,將空間與居者的心境完美結合,營造出舒適安樂的幸福場。 戶型圖一覽▼ 實景欣賞▼ ▲貴氣加大氣而又不失自在與隨意的美式家居! 城東分部沈月英 / 名門世家 本案的硬裝設計以造型木作和工藝皮革硬包為主,搭配昊倫軟裝的家具配以象牙白為主色調,加上一些頗具現代感的輕奢元素,汲取了美式中溫情的部分,摒棄過于厚重的形體表現,呈現出優雅的格調。 戶型圖一覽▼ 實景欣賞▼ 設計二部胡雅芳 / 金都華庭 在家居設計領域里,新與舊、中與西,會隨著時代演進以及業主審美的變化,衍生出風貌各異的創新式樣。混搭風格通常包含有傳統的經典余韻,又加入了適宜現代生活的舒適要素,雖然小眾,但足夠有個性。 要設計一個與眾不同的家,膽大心細很重要。雜而不亂,才是混搭的最高境界。本案為230方混搭風格作品,或許可以帶給你一些靈感哦~ 戶型圖一覽▼ 實景欣賞▼ 設計三部許明 / 玉蘭苑 本案的屋主是一對退休夫妻,喜愛攝影和書法,也愛中國傳統文化,所以風格很快就確定了中式。整體設計偏向傳統、穩重與大氣,符合居住者的心性。 戶型分析▼ ▲原始戶型圖 ▼平面設計圖 設計改動:敲掉原戶型上多余的墻,使整個空間視野上變得更加開闊,動線更加分明,并將多余的設備平臺包進來提升了空間利用率。 實景欣賞▼ 全案組史曉帥 / 都會森林 本案為精裝房案例。精裝房可以省去前期裝修等一系列繁瑣工程,但也存在著一些顯而易見的弊端,比如風格不合心意、空間利用率不高、功能分區不合理等等。通過設計來豐富內部空間,達到業主想要的風格效果,使其符合更高的審美需求,正是精裝房設計的關鍵。 SU空間效果一覽▼ 效果圖▼ 科技城分部王麗婷 / 上塘宸章 本案為頂層復式的新中式項目,業主喜愛新中式風格,以及傳統的中式家具,空間改造為設計師首先考慮的因素,要滿足六口人的居住需求,樓梯的位置和儲物空間規劃是此次設計的重點。 實景欣賞▼ 本次會議邀請到了歐瑞博智能家居的馬總與HBI瓷磚的小伙伴到現場為大家做了各自的產品介紹,軟裝部孟老師和產品中心的同事則帶來了最新的展廳上新信息。 △李總為各業績優秀的設計師頒獎 會議的結尾,李總講話強調,提升客戶滿意度始終是我們工作的重中之重,這是所有南鴻人應謹記的準則,以客戶為本。設計師要不斷提升自己的設計水準,跟上現有的流行步伐,從客戶的需求出發,為他們打造更優質的方案。




























免費
免費申請戶型規劃
專屬設計師免費1對1全程服務
已經有3788人申請
24小時免費咨詢電話
400-8800-618
你家預算
108080元