
200㎡現代極簡 | 全屋深色?夠大膽,夠硬核!

黑色擁有謙虛與傲慢兩種特質
慵懶隨性卻神秘莫測
是一種最有深度的顏色
——山本耀司
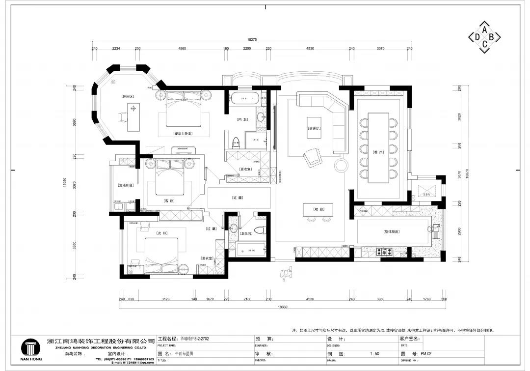
【項目·信息】 地址 / 華瑞晴廬 戶型 / 三室兩廳 面積 / 200㎡ 風格 / 現代極簡 設計施工 / 浙江南鴻裝飾 01. 客戶需求 本案的男業主是位個體戶老板,事業有成,性格熱情開朗,十分好客,由于夫妻二人目前沒有小孩,父母也是偶爾來住,對房間的需求并不大,因此戶型從原來的5房3衛改為了3房2衛,并盡可能擴大客餐廚的面積,來滿足業主的會客需求。 02. 裝飾亮點 “人內在的細膩與深切的情感,需要與之對等的空間來承載。灰與黑,看似簡單平靜,卻蘊含著無窮的魅力。” 屋主偏愛深色系,因此設計師精細地調配深色在空間中的比例,運用護墻板、大理石、皮革等質感材質,借助燈光效果,為他們打造了這個頗具神秘感和高級感的暗色空間。 03. 戶型分析 & Design Drawing 1、進門靠墻增加一組鞋柜以提升玄關收納。 2、原戶型中的兩個房間合并成餐廳區域,并與客廳打通,使人一進屋便能感受到公空間的開敞氣勢。 3、原有的一個衛生間改造成衣帽間,將主臥打造成一個包含休閑區區、寬敞主衛、衣帽間在內的豪華套間。 04. 設計落地 很多人酷愛深色 與其說天性愛低調 不如說是深色所散發出的靜謐氣質 恰好與渴求安寧的內心產生了共鳴 灰與黑打造的客廳 洋溢著高級感與神秘氣質 豐富的紋理、材質變化 在空間內形成一種微妙的和諧 熱情張揚的紅 與深沉神秘的黑 兩相對立的色彩語言 帶來十足的視覺沖擊力 & Dining Hall 黑色的皮革餐椅 搭配高顏值的大理石餐桌 打造精致的多人用餐環境 餐廳做整面酒柜 置入暖黃燈帶 既是酒水的完美收納 又是一處身份品味的象征 玄關往客廳的過渡區域 安置精心打造的吧臺 成為過道口的一處個性風景 也是日常的簡餐區 廚房擁有標準的U形操作臺 儲物充足,動線流暢 深色櫥柜與臺面 完美塑造一體式空間感 主臥承襲整體的暗色風格 深沉的灰黑色打底 傳達平和寧靜的空間情緒 豪華的主臥套房 包含休閑區、主衛與衣帽間 擯棄了所有多余的裝飾 只保留每一件必需的家具 獨立衣帽間設計 黑色柜體內藏有燈帶 酷雅有型 純粹的黑構建理性的質感 透過白色紗簾進入室內的日光 讓客臥空間 簡潔中帶上了變化 次臥床尾 安排書桌椅與書架 灰色的墻布 排除一切冗余 力求沉穩大氣 經過戶型調整 主衛內部更顯寬敞 浴缸與淋浴區分居兩側 功能區的豐滿 是給生活最大的舒適 次衛風格與主衛相似 石紋瓷磚搭配木質臺盆柜 淋浴區內設置壁龕 視覺舒適,實用性強


























免費
免費申請戶型規劃
專屬設計師免費1對1全程服務
已經有3791人申請
24小時免費咨詢電話
400-8800-618
你家預算
108080元