
海威國際115方現代風格 | 帶著點小輕奢的雅致空間,太酷了

本案是一套115平米的現代風格三居室,常住一家四口。為滿足客戶儲藏多的需求,設計師利用墻體的位置做了很多儲物柜,再結合業主的其他要求,將房屋結構進行有序改造,加上后期軟裝搭配,一套美觀實用又簡潔大方的空間就得以完美呈現啦!
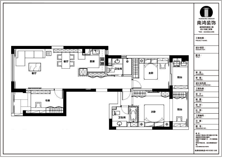
戶 型 圖

設計說明:
1、入戶設計規劃出玄關空間,進門的廚房墻體被去掉擺放了鞋柜,以滿足屋主日常需求;
2、主衛與主臥間墻體調整,兩塊區域用玻璃墻相隔,原本的暗衛因此變得通透敞亮,還可以安置下一個浴缸;
3、朝北的小房間設計了一個榻榻米,增加整體儲物的同時還可以做小孩房。


入戶正對口設計了一個玄關柜,中部與底部留空并內嵌燈源,滿足儲物的同時也保證了照明,無把手設計使整體立面更為簡潔。



客廳通鋪石紋地磚,黑色皮質沙發搭配方形現代茶幾,背景墻選用大面積KD板包覆,使得整體風格簡潔明快,大氣爽朗。
頂面安裝一盞樹枝型主燈,配上射燈作輔助照明,金色的抱枕和藍色的懶人沙發瞬間提亮空間。

客廳望向玄關視角。角落處擺上了一盆虎皮蘭,給這個深色空間帶來生機與綠意。


餐廳與客廳之間毫無阻隔,通透的功能區布局令主體空間顯得更加開闊,一覽無余的視角令人身心愉悅。



廚房空間一改主體區域深色的基調,改以淺灰色的櫥柜作為主色調,搭配各類黑色廚電,帶來整潔明凈的視覺效果,淺花色的臺面也易于打理。



主臥內包進陽臺,增加采光,額外劃出了一塊休閑與工作的地方。室內背景墻采用墨綠色硬包,結合棕色的床品,營造放松而舒適的休息環境,兩側的金屬材質吊燈點綴出小輕奢格調。

主衛通過向主臥拓展,增加了浴缸的空間,兩塊區域用一面玻璃相隔,在視覺上大大提升了空間感。


這里更像是書房+兒臥+休閑室的結合,做了榻榻米之后功能非常強大,儲物柜延伸出書柜,儲物空間一如既往的能裝。

書房內部空間細節展示。擺上靠枕、書籍、各式模型玩具,再加一把吉他,這兒就是孩子們最自在的游樂場所。


主衛以黑色的石紋瓷磚為主體,白色的浴室柜與大理石臺面與之形成鮮明對比,時尚又美觀。
免費
免費申請戶型規劃
專屬設計師免費1對1全程服務
已經有3790人申請
24小時免費咨詢電話
400-8800-618
你家預算
108080元