
新作 | 這場視覺的盛宴,始于1890年那個春天
本案這處充滿個性張力的居所,乍看像是年輕人的時尚公寓,實則為一對品味卓越的業主夫妻的退休住宅。他們以半生閱歷淬煉審美,對空間整體質感與氛圍營造都有著極高的追求。
項目風格定位在法式中古,
游走于古典的莊重與現代的松弛之間,
讓人久久回味。

空間硬裝以法式線條、雕花燈盤等經典元素細細雕琢,搭配材質多樣的豐富軟裝,在光影交錯的層次中,緩緩沉淀出優雅復古質感。每一處細節都藏著時光的注腳,歸家,也自然地變為了一場與自我對話的儀式。
"
真正的復古從不沉溺于復刻,
而是讓舊時光的浪漫,
生長出適合當下的樣子。
"


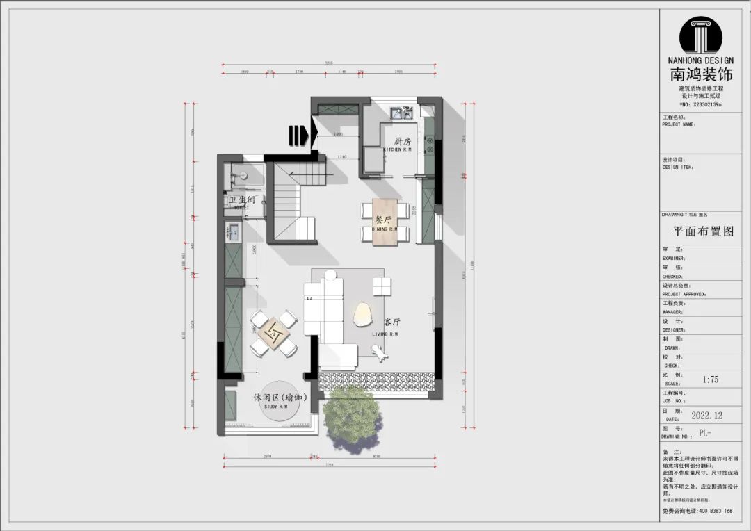
?原始戶型 優點:北房間的視野很好,樓上樓下都有陽臺,頂上還有一個大露臺。 缺點:樓梯比較窄,客廳偏小,屋內視野不夠開闊。



?設計改動 ①保留樓上2個房間,樓下房間則與客廳打通,以敞開整塊公區域的視野。 ②敲掉原有樓梯,重新設計為鋼架懸浮式樓梯。 ③北房間設備平臺擴出去,整塊區域作為衣帽間,提升儲物容量。
CASE APPRECIATION
▽
Hallway
玄關

入戶空間,冰川灰色的玄關柜帶著冰峰般的冷靜感,透出低調的沉穩。嵌入長虹玻璃材質的柜門顯映朦朧光感,柜體雕琢線條,傳遞典雅精致的氣息。
Living Room
客廳


一樓在將房間敲掉之后,公區域的視野整體打開,一體式的開放格局敞闊明亮。可可蛋奶的基底柔和溫潤,墻頂以法式線條勾勒精致感,豐富的軟裝元素為這個家增添了細膩、獨特的浪漫情調。


空間以經典法式元素為基底——雕花燈盤、護墻板與立體法式線條,勾勒出層層精致的輪廓。軟裝同步注入溫潤的時光質感:淺棕色油蠟皮沙發、橢圓侘寂風茶幾、柚木電視柜、水滴燈...油畫般的筆觸,在空間內蘊生無窮的詩意。飄窗也被改造為軟榻,結合立面拱形的壁龕,化身為午后小憩或社交的理想角落。
Dining Room
餐廳

餐廳選配富于設計感的餐桌餐椅,頂部以圓形線條界定場域并增強儀式感,搭配一盞包豪斯風格吊燈,恬靜之中醞釀出時尚氣場。


餐廳另一側以墨綠色的西廚空間作為視覺焦點,中部操作臺的背景面與臺面皆用天然奢石打造,與墨綠柜體形成材質碰撞,延伸設計美感。吊柜部分做了后退處理,既增強了空間韻律,又能從細節處提升日常使用的舒適性。
Leisure Area
休閑區


休閑茶歇區、健身瑜伽區通過半圍合式布局,優雅銜接客廳。深色護墻板鋪墊復古基調,上半墻的留白制造視覺余裕,再以拱形門洞連接陽臺,模糊室內外界限的同時,加強了空間的縱深感。


光線漫入室內的那一刻,空間便有了恒久的呼吸,復古感的美學,從不依賴刻意的裝飾。輕沏一壺花茶,閑翻詩卷,便足以讓午后的休憩時光沉淀為莫奈筆下的柔光畫作。
Stairs 樓梯

樓梯是本次改造的重點。木制踏步、扶手交匯黑色鐵藝欄桿,既延續了法式風的優雅基因,又為空間注入摩登的層次感。懸挑式的結構更顯靈動,材質與工藝對話,在這無聲的空間中默默布陳著詩情畫意。
Bedroom
臥室


臥室繼續以優美的法式線條勾勒空間,背景藝術墻布營造自然感與慵懶愜意的情調,床尾還增加了一組衣柜,強化收納。
Cloakroom
衣帽間


二樓北向單辟出獨立式衣帽間,不同物品分區明確,能夠滿足各項儲物需求。整齊統一的純白柜面搭配金色拉手與通透玻璃材質,保持復古調性的同時,更賦予空間滿分的實用度。


房間最北側的飄窗結構也得到很好利用,定制了實木梳妝臺與分層斗柜,低調中透顯華貴,宛若置身某個上海老公寓的閨閣一隅。臺面延伸至窗框,形成自然的視覺圍合,蔓延出暖暖的安心感。
Bathroom
衛生間

復古氛圍濃郁的衛浴空間,將時光雕琢為高級感,韻味十足。外側干區選用黑色系復古風臺盆柜,黃銅元素加上雕花細節,將浪漫刻入骨髓。

濕區地面鋪貼紅色花磚,對應到墻面上半部分的同色瓷磚,更以凹凸花紋彰顯生動肌理,搭配下墻白色羽毛磚做色彩上的中和,整體營造出豐滿、極具活力的視覺效果。
P.I. 項目信息
項目名稱:芳菲之城
設計風格:法式中古
項目類型:疊墅
項目地點:中國 · 杭州
項目面積:160㎡
套餐類型:精裝房改造
項目服務:設計·施工·硬裝·軟裝 全案設計
設計單位:浙江南鴻裝飾
施工單位:浙江南鴻裝飾
免費
免費申請戶型規劃
專屬設計師免費1對1全程服務
已經有3788人申請
24小時免費咨詢電話
400-8800-618
你家預算
108080元