
500㎡現代 | 晨光晝夢

當早晨的第一縷陽光穿透簾的縫隙,
新的日子便在迷人的照拂中悄然開啟。
泡上一杯溫熱牛奶,站在窗邊,
等待著這座城市漸漸蘇醒。


500方的平層天然帶著景觀與格局上的大優勢,設計師通過對業主的家庭結構、生活習慣、居住訴求、風格偏好等深入洞察,以理性專業又不失感性溫柔的筆法,為他們構筑起這所承載豐滿理想的美好居所。
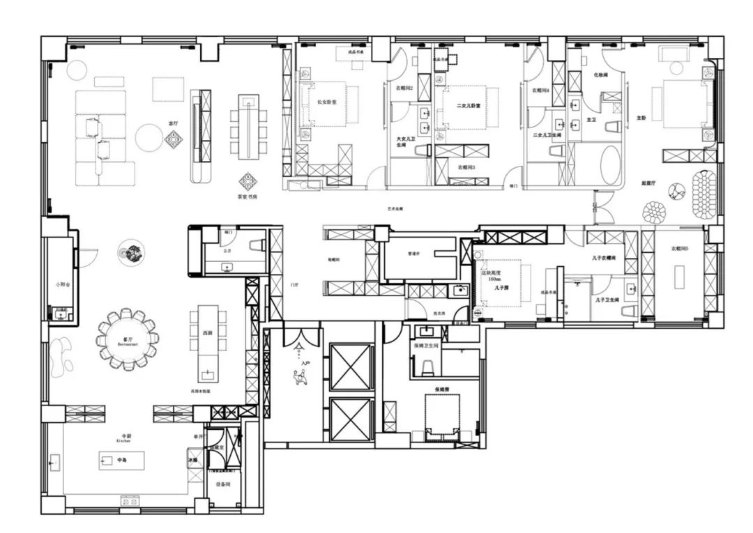
▊ FLOOR PLAN

平面方案
▊ CASE APPRECIATION
L.R. 客廳


開闊明朗的大平層空間,擁有著極為優越的采光面,光線得以在室內毫無束縛地自由穿梭。客廳、餐廳、茶室與餐廚幾塊主要的公域功能區彼此連通,形成高度一體化的自由互動式空間,將觀影娛樂、家庭活動、聚會社交等等所有的可能性集合。


矗立大廳中場的隔斷墻,落在客廳一面,即成魚肚白大理石的電視背景,天然花紋與懸浮姿態描繪豪邁之感,搭襯黑色開放層架與底部壁爐焰火,盡顯高級氣質與張力。意式極簡沙發與紋理石案幾、素雅地毯共此聚匯,暖淡日光間,訴說一室的沉靜與優雅。

空間不設限,家宅才能充分享受自由。美酒、品茗,亦或僅僅沉浸于一本書的時光,空間內外的和諧貫通,成就人與居室的絕妙默契。
D.R. 餐廳

客餐過道的端景面擇絢麗的奢石做背景,為場域增添了濃郁的奢華氣息,引導著視線的行進過渡。

餐廳頂面做藝術化的圓弧結構處理,結合隱形光氛,拉伸層高的同時,實現輕盈流暢的懸浮效果,更與象征圓滿的圓桌,有了上下對應的統一感。餐廚過渡區設置酒柜,珍藏主人的美酒器皿,以待來日賓主盡歡。



西廚相鄰餐廳,由墻至頂延伸、包覆木皮,承托溫潤家景,西廚柜、島臺的奢石天然紋理,如浪潮般靜靜流動,蘊生高雅感受。一體化餐廚場域延續了敞闊空間感,通透的布局、精細的結構設計,構建起深邃、綿長的居室氛圍。

空間質地上溫暖與清冷的結合,顯現著設計師對平衡性和自然感的重視。簡潔與舒適被安放在家屋的每個角落,自由流通的動線交織出優雅,向光而生的詩意景致,如畫卷般徐徐展開。
K.R. 廚房

獨立寬敞的中島型中廚空間,以開放無阻的姿態銜接餐廳,流暢匹配區域間的對話,并通過色彩、線條、結構的干凈配比,表達空間的統一性與純粹質地。
T.R. 茶室

開放式茶室兼做書房,與客廳間依靠雙面隔斷墻劃開不同區域性質,同步建起流暢的洄游動線。兩側架起豐富的儲物和展示空間,配合精致燈線,營造一方高品質私享藝境。
B.R. 臥室

主臥以奢闊的尺幅納入衣帽間、起居廳、衛生間等多樣化功能場域,床頭兩側彎弧消弭結構上的鋒利,注入柔和意蘊,繼而以深色胡桃木半墻帶入平穩的氣場,生活的無邊愜意于此處盡享。


次臥房均延續平和素雅的氣韻,打造出寧靜自在的休憩氛圍。臨窗設置舒適的休閑角落,無論是晨起時伴著日光細品一盞清茶,亦或是午后斜陽下翻閱一卷詩書,這里都是遠離塵囂、沉淀心靈的絕佳去處。
P.I. 項目信息 項目名稱:逸江源境 設計風格:現代 項目類型:大平層 項目地點:中國·寧波 項目面積:500㎡ 項目服務:設計·施工·硬裝·軟裝 全案設計 設計單位:浙江南鴻裝飾 施工單位:浙江南鴻裝飾
免費
免費申請戶型規劃
專屬設計師免費1對1全程服務
已經有3788人申請
24小時免費咨詢電話
400-8800-618
你家預算
108080元